

Рекомендованное применение | |
|---|---|
Загородные дома для круглогодичного проживания Городские квартиры: на оживлённой улице, с недостаточным отоплением, на высоких этажах Крупногабаритные окна и двери |
VEKA SOFTLINE 70Особенности нашей сборки | |
|---|---|
![]() | |
| Ширина профиля | 70 мм |
| Толщина стенок | Класс А по RAL не менее 3.0 мм |
| Количество камер | 5 |
| Стеклопакет | Мульти зимой сохраняет тепло, СПД40 |
| Армирование в раме | Замкнутое повышенная жесткость рамы, |
| Система уплотнений | 2 контура Уплотнение вставлено в паз, допускает быструю замену |
| Нахлест уплотнений снаружи | 7 мм |
| Нахлест уплотнений изнутри | 8 мм |
| Глубина посадки стеклопакета | 16 мм |
| Сопротивление теплопередаче профиля с армированием | 0,79 м2°С/Вт Должно быть не менее 0,63 по СНиП 23-02-2003 |
| Сопротивление теплопередаче стеклопакета | 1,15 м2°С/Вт Должно быть не менее 0,63 по СНиП 23-02-2003 |
| Степень глянца | Средняя |
| Фурнитура | Gretsch-Unitas (Германия) |
| Сравнительная стоимость | Средняя |
Стоимость типовых конструкций VEKA SOFTLINE 70
5- и 9-этажные дома. Актуальные цены на дату: 19.03.25 |
|---|
Одностворчатый ![]() Окно и отлив, Подоконник, 6500 руб Отказ от Двустворчатый ![]() Окно и отлив, Подоконник, 7000 руб Дополнительная Дополнительная Отказ от Трёхстворчатый ![]() Окно и отлив, Подоконник, 8700 руб Дополнительная Дополнительная Отказ от Балконный блок ![]() Окно и отлив, Подоконник, 11000 руб Дополнительная Дополнительная Отказ от Балконный блок ![]() Окно и отлив, Подоконник, 12800 руб Дополнительная Дополнительная Отказ от |
ПРИМЕЧАНИЯ: 1. Монтаж выполняется по ГОСТ (ПСУЛ снаружи + лента полнобутиловой пароизоляции изнутри) ПРИМЕЧАНИЯ: 1. Монтаж выполняется по ГОСТ (ПСУЛ снаружи + лента полнобутиловой пароизоляции изнутри) |
О профильной системе
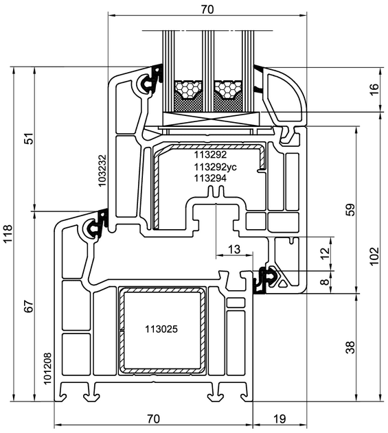
Комбинация профилей
Рама арт.101208 - Створка арт.103232 | |
|---|---|
![]() |
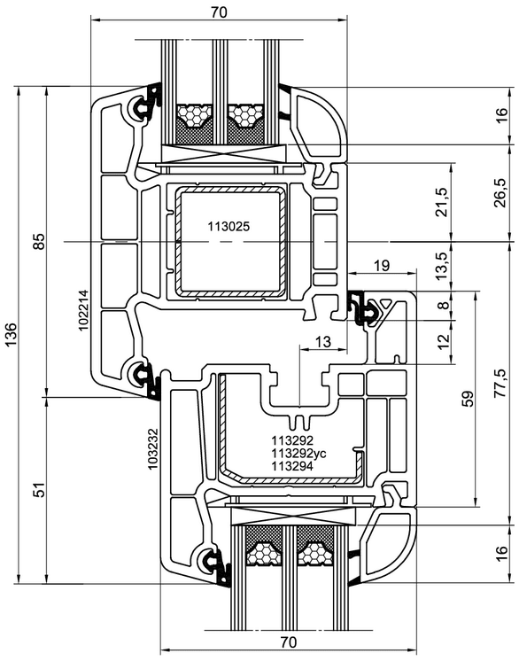
Створка Z-образная арт.103232 - Импост арт.102214 | |
|---|---|
![]() |
Уникальные отличия VEKA
Толщина стенки по евро стандарту
Высокая прочность сварного шва на углах. Нет трещин.
Створки не провисают, все режимы открывания, откидывания и закрывания функционируют исправно.
Почему важно то, что все профили VEKA производятся по классу А?
На рынке много оконных брендов, однако, из каких именно профилей будут изготовлены окна, которые попадутся потребителю - никто сказать не может. Это уж как повезет.
Почему? Потому что на практике — более 80% всех окон в России производятся из профилей класса Б.
Оптимизированных, адаптированных, урезанных и сокращенных. Под звучными немецкими названиями — но класса Б. С хлипкой наружной стенкой, низким сроком службы и высокими эксплуатационными рисками.
С окнами VEKA такая ситуация невозможна. Покупая VEKA, потребитель точно знает, какой уровень качества получит в итоге — все профили будут соотвествовать классу А.

Профиль VEKA Euroline 58 в разрезе. Обратите внимание на толщину стенок.
Замкнутое армирование
Окна VEKA всегда закреплены по ГОСТ.
При установке на монтажную пластину исключён люфт профиля в проёме.
ОСОБЕННОСТИ КРЕПЛЕНИЯ В ПРОЁМЕ
Крепить оконный блок за тонкую пластиковую стенку запрещено по нормам ГОСТ.
К сожалению, сегодня это самый распространённый способ монтажа. Вызвано это тем, что так закрепить окно легче всего. В результате — оконная рама прижимается нагелем (шурупом) в пластиковую стенку профиля, а не в металл.
Окна VEKA просто не получится установить неправильно — этого не позволит сделать сама конструкция окна. Шуруп всегда пройдёт через две стенки армирования и упрётся шляпкой в металл, а не в пластик.








