
Выберите параметры помещения
Подробнее о комплектации наших окон для квартир
Двойная защита от запотевания
ПРО ТОЧКУ РОСЫ ПОДРОБНЕЕ
"Запотевание" стекла — крайне вредный эффект. Вода стекает по стеклу на подоконник и приводит к образованию плесени на откосах.
Чем теплее внутренняя поверхность стекла — тем меньше вероятность возникновения конденсата. Нагреть стекло можно либо увеличив приток тёплого воздуха от радиатора, либо установив более "тёплый" стеклопакет.
Наш опыт показывает, что "тёплый" стеклопакет — отлично справляется с конденсатом, даже если отопление недостаточное.

В окна для квартир мы всегда устанавливаем два энергосберегающих покрытия — на наружное и внутреннее стекло.
Только немецкая фурнитура
СРОК СЛУЖБЫ ФУРНИТУРЫ
К сожалению, не вся фурнитура служит более 10 лет. Экономия на механизме может быть совершенно незначительной, а его ремонт через пару лет может обойтись дорого и не всегда приведёт к полному восстановлению функциональности.
Сложностей очень много, т.к. много деталей механизма привязано к конкретному оконному профилю и универсальных запчастей нет.

Комплект поворотно-откидной фурнитуры G-U Euro-Jet
Только тёплые откосы
ВСЕ ЛИ СЭНДВИЧИ ОДИНАКОВЫ?
Не все сэндвич-панели подходят для откоса. Во-первых, сэндвич-панель должна иметь толщину не менее 9мм, чтобы надёжно держаться в стартовом профиле. Во-вторых, наружный пластиковый слой сэндвич-панели должен быть не менее 0,5мм толщиной, чтобы сквозь него не просвечивались внутренние стыки вспененного полистирола.
К сожалению, рынок наводнён панелями эконом-класса. Их толщина 8мм и менее, пластиковая облицовка 0,4мм и менее. Такие сэндвич-панели очень плохо подходят для

Оптимальное обустройство тёплого откоса в квартирах с использованием сэндвич-панели
Монтаж по ГОСТ входит в стоимость
МОНТАЖНЫЕ ЛЕНТЫ И ГЕРМЕТИК
Со стороны улицы мы устанавливаем ПСУЛ (предварительно сжатую уплотнительную ленту). Она позволяет лишней влаге выходить из монтажной пены, одновременно защищая пену от солнечных лучей, которые разрушают её.
Со стороны помещения мы устанавливаем полнобутиловую пароизоляционную ленту. Она не даёт влаге из помещения попасть в слой с монтажной пеной. Если этого не сделать, то в пене могут начаться дегенеративные процессы.
Не всегда возможно применить ПСУЛ или ленты. В этих случаях мы применяем оконный герметик типа "СТИЗ А" и "СТИЗ Б". Он наносится шпателем и имеет белый цвет.

Схема монтажного шва с системой 3-х слойной изоляции по ГОСТ.
Наш стандартный способ монтажа.
I — наружный водоизоляционный паропроницаемый слой
II — центральный теплоизоляционный слой
III — внутренний пароизоляционный слой
III* — дополнительный гидроизоляционный слой
Учитываем ветровую и шумовую нагрузки
— профиль 60мм - только до 5го этажа
— профиль 70мм - до 17 этажа
— профиль 82мм - от 18го этажа и выше
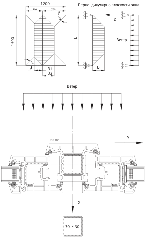
ШИРИНА ПРОФИЛЯ И ВЫСОТА УСТАНОВКИ ОКНА
Наш опыт показывает, что с увеличением этажности необходимо увеличивать толщину оконного профиля, даже если это напрямую не требуется по расчёту ветрового давления.
Действительно, в окнах с разной толщиной профиля используется одинаковое стальное армирование и кажется, на первый взгляд, что вполне допустимо устанавливать на 15ом этаже окна из самого тонкого профиля.
В реальной же практике мы видим то, что тонкие оконные профили очень не любят высоких этажей. Возникает много негативных эффектов, которых бы не было на более широком профиле.
Этажность установки и шумовую нагрузку легко можно учесть в нашем оконном конфигураторе.

Прочностной расчёт для окна 1200 х 1500 (h).
Мы выполняем такой расчёт для любой нестандартной конструкции.
Микропроветривание в комплекте
ВАЖНОСТЬ МИКРОПРОВЕТРИВАНИЯ
При закрытой створке окна ПВХ полностью прекращается приток воздуха с улицы!
Если нет притока свежего воздуха, то и вытяжка полностью останавливается! Последствия — головная боль, и общее плохое самочувствие.
Именно микропроветривание решает эту проблему, позволяя небольшому количеству свежего воздуха проникать в помещение и включатьвытяжную вентиляцию.
При этом микропроветривание создаёт поток холодного воздуха зимой начиная от середины створки и выше. Таким образом, основная масса воздуха идёт под потолком, не создавая сильного сквозняка.

Специальная деталь для микропроветривания обеспечивает постоянный приток свежего воздуха от уровня середины створки и выше
![Изображение для [object Object]](/_next/image?url=%2F_next%2Fstatic%2Fmedia%2Fsteklopaket_1.383e5a32.jpg&w=3840&q=95)
![Изображение для [object Object]](/_next/image?url=%2F_next%2Fstatic%2Fmedia%2Flenta_butil_1.dc5ba54a.png&w=1080&q=95)
![Изображение для [object Object]](/_next/image?url=%2F_next%2Fstatic%2Fmedia%2Ffurniture_1.93a51210.png&w=828&q=95)
![Изображение для [object Object]](/_next/image?url=%2F_next%2Fstatic%2Fmedia%2Fotkos_tmblr.ee261ed7.png&w=1920&q=95)
![Изображение для [object Object]](/_next/image?url=%2F_next%2Fstatic%2Fmedia%2Fvetrov_nagr_1.8e6a8f00.png&w=1080&q=95)
![Изображение для [object Object]](/_next/image?url=%2F_next%2Fstatic%2Fmedia%2Fmicro_1.159bb7c9.png&w=640&q=95)